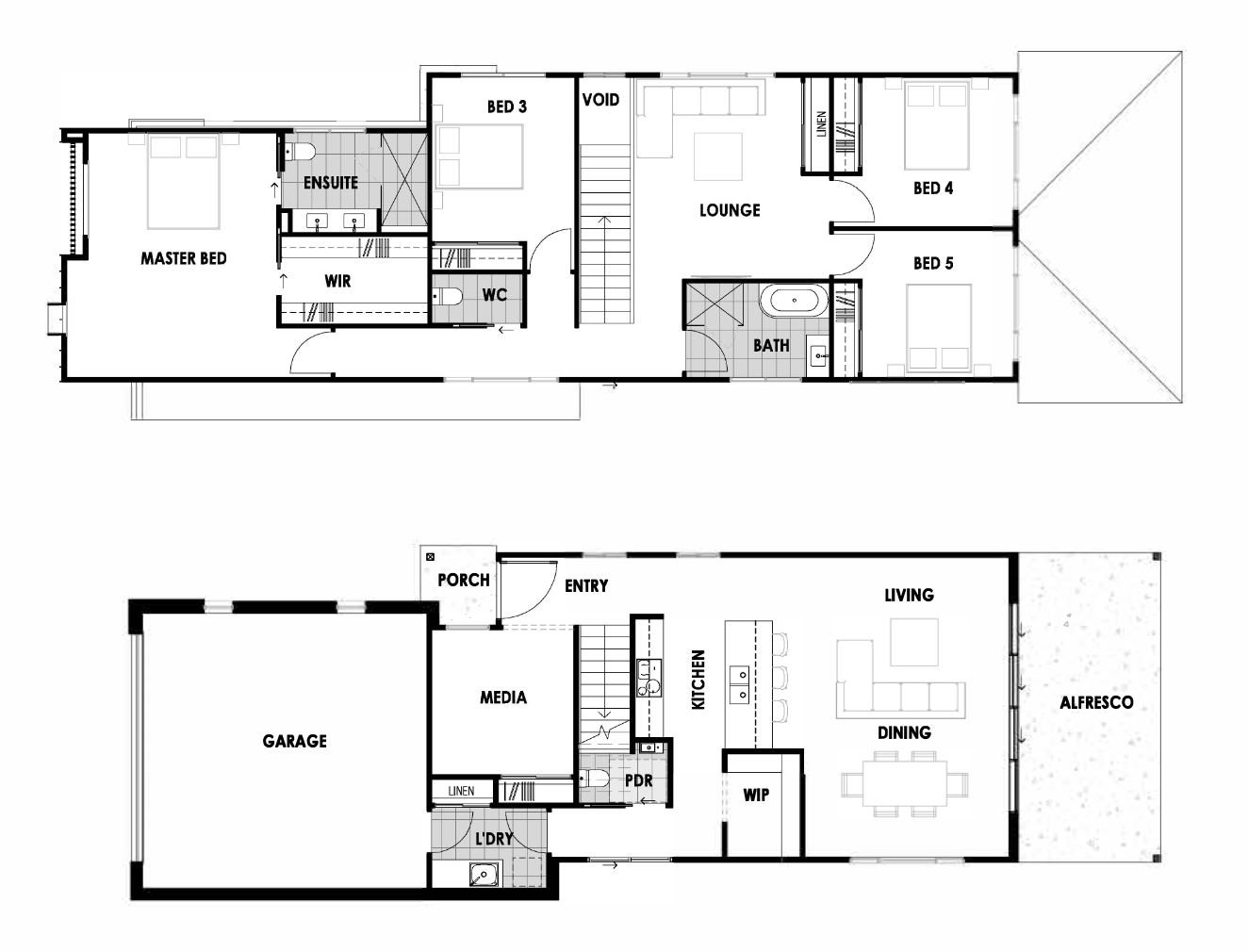
House Plan

Ventura (8.5 slim frontage)

High Set Designs

 

Ventura (8.5 slim frontage)

All of our house plans and facades are able to be customised.

  • 8.5m Frontage
View Facade Options
 

Explore the thoughtful layout of this floor plan, designed to maximise space and enhance everyday living.

Facade options

Explore a range of stunning façade options that elevate your home's street appeal, each designed to reflect your unique style. From modern elegance to classic charm, our customisable façades ensure your home makes a lasting impression.

Gables 8.5

Haven 8.5

Kiba Built inclusions

Discover Premium Inclusions with Kiba Built

Our standard inclusions are anything but standard, featuring high-end finishes, modern fixtures, and thoughtful touches that enhance every corner of your home. From designer kitchens to energy-efficient features, every detail is carefully selected to ensure your home is as comfortable as it is beautiful.

Pre-Construction
Complete plan drafting (all plans remain copyright of KIBA Built) and Engineering (concrete slab designed and inspected by a Structural Engineer)Standard council fees, plumbing approval fees (excluding HSTP) & Insurance fees (QBCC Insurance, Qleave Insurance & Public Liability Insurance)All building approval fees (except exclusions listed such as acoustic, bushfire, HSTP etc)Independent soil test & contour surveyUnderground power connection (not including provider connection fee), connection to existing sewer house point, stormwater connection to street outlet and connection to existing water meter to up to 600sqm block and up to 6m house setback2 hour colour selection appointment at the KIBA Built Showroom with an Interior Designer
General & Structural
Complete termite protection - seal collars to slab penetrations and termite seal to brick perimeterStandard equal cut & fill house pad to a depth of 500mmErosion control silt fence as per council requirementsDriveway crossover during construction to comply with council regulationsH1 Soil allowance & N2 Wind Classification (no piering allowance to slab U.N.O.)Waffle pod, steel reinforced concrete slab as per engineer's specificationsZero boundary garage wall allowance up to 400mm fallIndependent frame inspectionSite skip bins & regular site clean ups of all construction debris by builder Concrete pump hire Site assessment, slab, footing and storm water inspections 7 Year Structual Warranty & 12 Month Maintenance WarrantySoffits are to be 4.5mm cement sheeting with 31 x 11 beading Framing is prefabricated steel 70 x 35 unless specified otherwise on plansRoof framing is prefabricated true core steel Engineer certified truss design at 900mm centres Stormwater to be connected to provision within property boundary upto 10m Sewerage to be connected to council sewer main point within property boundary upto 10m
Internal Features
2590mm high ceilings throughout single storey homes. Highset homes ground floor 2590mm, upper floor 2440mm.10mm plasterboard to all internal walls & ceilingsWet area walls to be sheeted with 10mm WR board and remainder walls in wet areas to be sheeted with waterproof WR board90mm cove cornice (excluding porch & patios)66 x 11 splayed skirting (primed FJ pine)42 x 11 splayed architrave (primed FJ pine)Vinyl wrapped sliding doors to robes (2100H approx, white frame)Swing or Sliding Doors to Linen (2100H approx, white frame) 4 x melamine shelves to linen and pantry Walk in robe to master bedroom as per plan, with single shelf and chrome hanging rail1 x melamine shelf to all bedroom robes with 1 x chrome hanging rail
Windows & Doors
Aluminium powdercoat sliding windows and sliding doors with key locks (bathrooms to have obscure glass for privacy all other glass is clear)Front entry door allowance is from Humes/Savoy from the KIBA standard range. Front door handle and lock, Lockwood Nexion tri-lockset with a choice of Satin Finish or ChromeInternal doors to be Hume™ flush internal doors (2040 high) with 2 zinc plated hinges per door. Door stops to be plastic grip catch or cushion stop in white Magnetic door catch - Stainless Steel Cavity slider doors per planLockwood Element L3 Velocity Lever sets to internal doors (privacy set to toilets, bathrooms & master bedroom) - with a choice of Satin Finish or Chrome
Painting
Interior walls painted with low sheen finish, three coat premium system. All one colour (light colours only)Ceiling painted in a flat finish, three coat system. All one colour (light colours only)Semi gloss finish to internal doors, architraves and external & internal skirtings (light colours only)2 coat paint system to external doors finished in semi-gloss or satin clear coat stainExternal walls and eaves to be painted with a 2 coat low sheen system (dark colours may attract further fees)
Floor Coverings
450x450 Tiles to main living area, balcony (if applicable) and all wet areas - bathroom, laundry, powder room, WC and Ensuite floor/skirting is included from the builders standard range - Porcelin. OR choice of luxury vinyl planks to main floors. 450x450 Shower wall tiles from builders range (2.0m high max). Splashback and skirting (in all wet areas) to be a 200mm high split tile (or work full tiles, tilers discretion). Tiles to bath area (max 1.2m high) all trims to be brushed stainless or chromePorch & alfresco to be grey broomed finished plain concrete Kitchen splashback to be tiled from the Kiba standard range - (Subway Tile) Grout & silicone colours at builders discretion gout lines approx 3mm.Carpet installed to media (if applicable), all bedrooms and robes from Kiba's standard range Waterproofing membrane to Australian Standards applied to all wet areasPlain concrete to garage floor
Electrical
5.0Kw split system air conditioner to main living area, back to back installation LED Downlights (approx) 1 light for every 10sqm of home, varies with chosen design Single phase electrical connections to 6m setback 1 x Digital TV antenna (roof mounted), booster also supplied if required Hardwired interconnected smoke alarms 1 x Data point 2 x TV points Double power points varry based on chosen design (As a guide, approx. 1 power point to each room, 2 GPO to kitchen and main living area) Upto 6 x Single service power pointsClipsal iconic switches
Kitchen Appliances
Cooktop Westinghouse Elec 60cm stainless steel Oven Westinghouse Elec 60cm stainless steelRangehood Westinghouse Slideout 60cm stainless steel
Joinery - Kitchen and Bathroom
YDL 20mm Silica free stone benchtops from the builders standard range to bathrooms and kitchenBeveled edge soft close laminte joinery to bathrooms and kitchen (kicthen overheads and cutlery drawers included). Colours from the builders Polytec standard range. One cutlery insert to one kitchen drawer4 Melamine shelves to pantry as above Kitchen sink - Stainless Steel Everhard 'El Trade' 1 & 3/4 Bowl SinkKitchen sink mixer - Alder Tapware Soho Gooseneck in black, chrome or nickel finsih
Plumbing Fixtures and Wet Area Finishings
Freestanding Bambino 1500mm bath tub with 180mm Alder bath spout - chrome, black or nickel finish Frameless mirrors to powder room, main bathroom and ensuite (matching vanity width, 900mm high)Rimless wall faced toilet suite to all WCs per planAlder Tapware Soho basin mixer to powder room, main bathroom and ensuite - Chrome, black or nickel finishAlder Tapware Soho shower wall mixer and Excite shower rail to main bathroom and ensuite - Chrome, black or nickel finishAluminium semi framed shower with pivot door and clear glass - Chrome or Black Alder Double towel rail and toilet paper holder - Chrome, black or nickel finishSteel 45L Laundry tub and cabinet with Alder Tapware Soho Gooseneck sink mixer - Chrome, black or nickel finishPop up plug and waste to main bathroom, powder room and ensuite - Chrome, black or nickel finishVanity basin - Ceduna inset basin to Main bathroom, powder room and ensuite Alder Wish toilet roll holder to all WCs per plan - Chrome, black or nickel finishShower bases recessed and bedded into existing slab for seamless finishSmart Tile brushed floor wastes to all bathrooms (not incl laundry or WCs)
External Features
External walls to be textured render façade with bagged sides and rear, OR face brick from PGH Kiba standard range Façade to be as per standard plan - unless upgraded External ceilings in alfresco area 10mm plaster board Colorbond roof, fascia and 150mm quad gutters. Max 25 Degree roof pitchColorbond garage door 2.1 x 4.8 auto opening sectional panel door with remotes 2 external garden taps (front and back) & 2x Storm water pits to yard Rinnai Hotflo 315 Ltr Electric Hot Water System 3.6kwDownpipes are 90mm PVC painted and located as per council approved plans
Energy Efficiency
Roof/Ceiling insulation is to comply with the 6 star energy rating. Insulation will be either 60mm Anticon blanket or R2.5 ceiling batts with Roof Sarking. This is to be at the builders discretion, unless otherwise requested by proprietor Sarking building paper to all external walls Minimum 6 stars energy efficiency rating to comply with council requirements applicable to all Kiba standard plans
Plus
Professionally cleanedPersonalised client portal app to track your buildMeet with the builder direct to plan your homeFriendly, professional and experienced small construction team working for a family company to give a personal touch to your build
Two Storey Homes ONLY
Scaffolding requirements, full ground for exterior, void platform for stairwell & hang on edge protection Staircase to be cover grade MDF
EXCLUSIONS (unless noted otherwise in upgrades)
Water and Gas meters (installation of water meter to be organised by Owner prior to KIBA starting)Organisation of any fencing credits from neighbouring lotsAny demolition, including any removal of existing fences and trees, underground servicesScreens and window coverings (if required to comply with council requirement)Landscaping and driveways including kerb/footpath cutoutsRetaining walls and fencingBuilding relaxations and town planningAcoustic, bushfire, coastal fallout requirements, traffic control, flood height requirements, slope stability reports, erosion reports or any other non-standard requirementsWater TankClotheslineDishwasher (standard opening will be left with connection point)3 Phase Power, overhead power (including extra cost of Pole hire) and Generator costs if power connection is delayedRock excavation/removal (for example for footings, fencing, retaining walls etc)Feature walls, feature tiles, shower nichesPendant lights and assemblyHSTP Systems & plumbing application associated with HSTP (if no sewer available)Identification survey (usually required in older existing areas). If an identification Survey is required, the construction cannot proceed until the survey is completed so that the house can be accurately positioned.
Important Notes
All post contract variations incur an $880.00 incl GST admin FeeIf a product is discontinued and/or unavailable, the builder reserves the right to provide a replacement product of similar quality & functionality without prior written notificationWhen multiple colours are available from the builders range, only 1 colour and 1 type can be selected throughout the houseBefore the project commences, the owner must provide Kiba Built with the following: 5% deposit, proof of land Ownership, letter of unconditional finance approval, signed colour selection. Failure to provide those items will incur delays.If not specified, all items are to be selected from the builders standard rangeDue to workplace Health & Safety Regulations, we request that the Owners only access the site under the guidance of our KIBA Built Site SupervisorTermite Control: Annual inspection is mandatory to maintain warranty and is to be carried out by a licensed contractor at the owners expense. The owner acknowledges that they have received a copy of the "QBCC Termite Management Systems" The Chemichal system also needs to be re-filled every 2-3 years by ownerNatural Gas service or connection fees are the responsibility of the ownerThe owners are responsible to provide a clean house site, clear of weeds, fill, rubbish and other building debris before construction commencesIt is the owners responsibility to water the lawn on a daily basis once the house has reached practical completion. Kiba Built will not be held liable for any dried turf.The owners acknowledges that any complaint or associated issues in relation to the noise of air-conditioning units does not fall under the responsibility of the builderDimensions shown on a floor plan are frame to frame and do not include plasterboard or other wall/floor coverings. Heights dimensions are concrete floor to timber trussesNo refund is given for soil classification less than "H"Tiles are not to be laid in a "brick pattern" or any other specific patterns. The tile setout is at the builder's discretion.If landscaping is done by owner, the reticulation system will need to be re-filled at the owners expense once landscaping is completeElectricity consumption during construction is to be paid by the owner. Water is to be paid by the owner during construction

Discover your ideal home style

Designs

 

Explore a variety of floor plan types, from spacious high-set and low-set designs to expansive acreage layouts and versatile dual key options. Find the perfect match for your lifestyle and land requirements.

Enquire now

Get in touch with us today

Please complete the enquiry form and someone from our team will be in contact within 24 hours.

Large range of standard inclusionsPartnered with quality brandsLuxurious choice of additional inclusions

Start Your Home Journey Today

Contact Kiba Built to begin planning

Home Designs

Inspiration

Kiba Built QBCC 15100054 © 2026 All Rights Reserved

Developed byweb design brisbane